Продажа 3х-комнатной квартиры

75 м²
Площадь
43.90 м²
Жилая площадь
8.80 м²
Площадь кухни
4/5
Этаж

9 200 000 ₽

122 667 ₽ за м²

ID объявления 12212194

Поделиться

Добавить в избранное

Трёхкомнатная квартира у моря в центре Новороссийска
Редкое предложение ниже рынка — на 2 млн выгоднее аналогов

Продаётся просторная трёхкомнатная квартира в историческом центре Новороссийска, всего в 200 метрах от моря и набережной Адмирала Серебрякова. Дом сталинской постройки 1957 года, объект архитектурного наследия города. Прочный кирпичный корпус с железобетонными перекрытиями, толстыми стенами и высотой потолков 3, 05 метра создаёт ощущение надёжности и пространства. Такие дома не подлежат сносу, только реставрации, что делает покупку безопасной инвестицией на десятилетия вперёд.

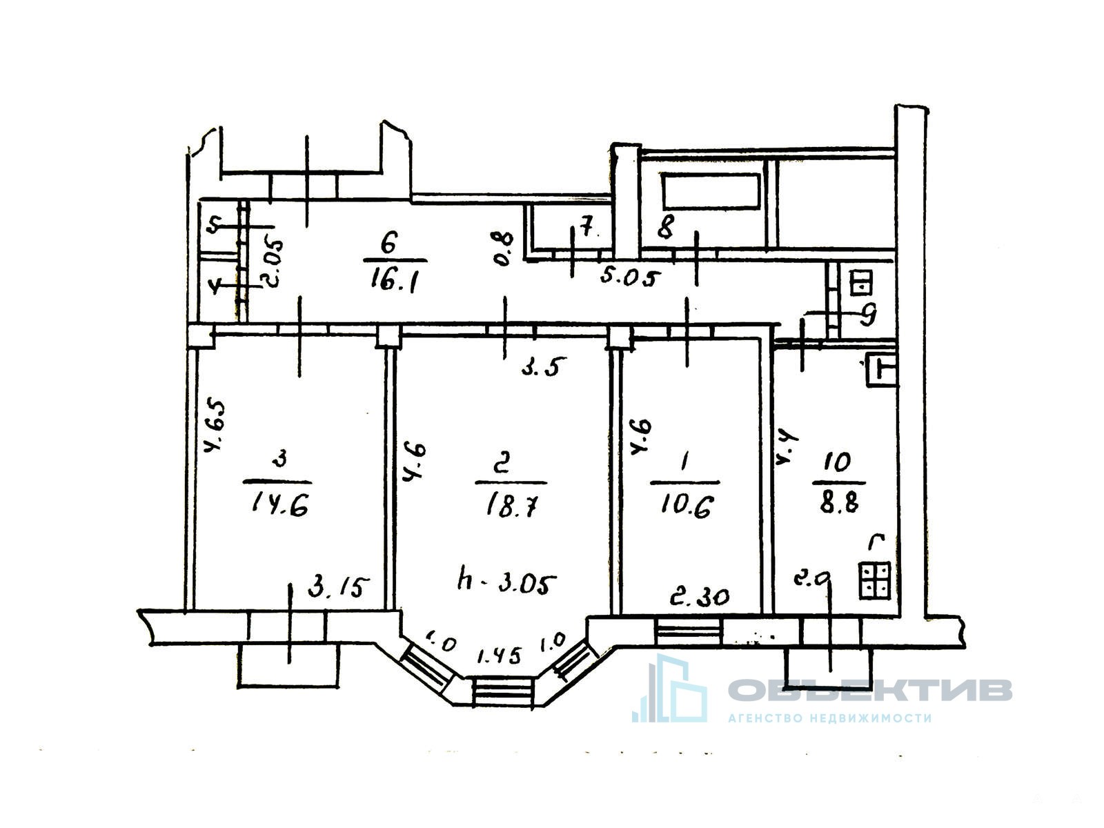
Характеристики квартиры:
Этаж 4 из 5, площадь 75 кв.м, изолированные комнаты, просторная кухня, два балкона. Квартира сухая, светлая, с частичным ремонтом. Выполнена замена электропроводки и электросчётчика, установлена газовая колонка для горячей воды, отопление централизованное. Чистый ухоженный подъезд с домофоном.

О доме и дворе
Здание после капитального ремонта, обновлена крыша, фасад, инженерные коммуникации. Территория огорожена, въезд через автоматические ворота. Есть парковочные места для жильцов, зелёный благоустроенный двор, зоны отдыха и большая детская площадка с верандой. В доме предусмотрено полноценное бомбоубежище, редкость и дополнительная гарантия безопасности для семьи.

Локация — сердце города и шаг до моря
Район, один из самых комфортных и востребованных в Новороссийске. До пляжа и набережной — 2 минуты пешком. Поблизости школы, гимназии, детские сады, больницы, аптеки, магазины, супермаркеты, кафе, кофейни и рестораны. В пешей доступности Морвокзал, Площадь Героев, скверы, прогулочные зоны и транспортные остановки. Здесь всё продумано для жизни без машины.

Почему этот объект заслуживает внимания

— Центральное расположение и близость к морю.

— Архитектурное наследие: дом построенный на века.

— Прочные материалы и высокие потолки, создающие особую атмосферу.

— После капитального ремонта, без скрытых проблем.

— Закрытый зелёный двор, паркинг, площадка для детей.

— Реальное бомбоубежище, важный аргумент безопасности.

— Инфраструктура для семьи и детей в радиусе 500 метров.

— Цена ниже рынка на 2 миллиона.

Инвестиционный потенциал
Новороссийск, это крупнейший портовый и курортный город Черноморского побережья. Сюда едут жить и работать круглый год. Высокий спрос на аренду обеспечивают моряки, специалисты, туристы и приезжие семьи. Квартиры в центральной части города у моря растут в цене ежегодно. Этот объект подходит как для проживания, так и для сдачи в аренду, доходность стабильна и прогнозируема.

Юридическая чистота и безопасность сделки
Все документы готовы. Квартира проверена без долгов, обременений и прописанных лиц. Подходит под любой расчёт: ипотека, маткапитал, наличные. Возможна дистанционная сделка с полным юридическим сопровождением: от аванса до регистрации собственности. Квартира свободна, можно заехать или начать сдачу в аренду в день покупки.

Преимущества покупки:
• выгодная цена в престижном районе;
• редкий сталинский дом в отличном состоянии;
• безопасная локация с инфраструктурой и морем рядом;
• квартира подходит под инвестиции, семью или сдачу в аренду;
• надёжный актив в растущем городе.

? Арсен Черакьянц
Агентство недвижимости «Объектив»

Проведу профессиональную консультацию, помогу с ипотекой и полным сопровождением сделки. Работаю только с проверенными объектами. Гарантирую безопасность, прозрачность и результат.

Итог:
Эта квартира сочетание локации, архитектуры и выгоды. Просторное жильё у моря, в доме с историей, в окружении школ, парков и набережной. Объекты такого уровня появляются на рынке крайне редко. Если ищете надёжную недвижимость в центре Новороссийска или доходный актив, это предложение стоит рассмотреть в первую очередь.

Дата обновления: 29 января 2026

Квартира Ипотека