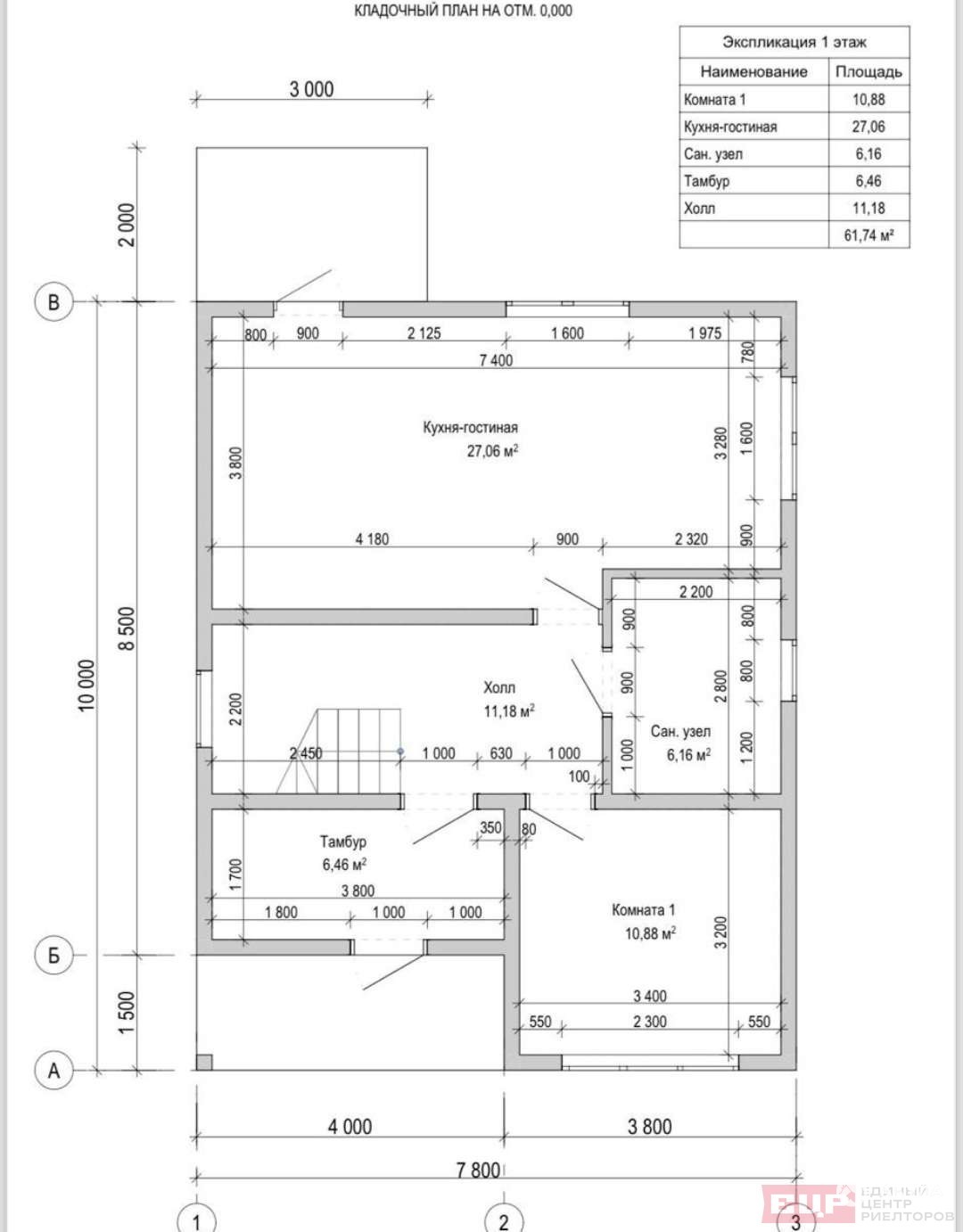
- 144 м²
- Площадь
- 76.00 м²
- Жилая площадь
- 24.00 м²
- Площадь кухни
- 2
- Этажность
- 3 сот
- Площадь участка
11 000 000 ₽
76 389 ₽ за м²
ID объявления 12294940
Поделиться
Добавить в избранное
ВОЗМОЖНО КУПИТЬ ПО СЕМЕЙНОЙ ИПОТЕКЕ
Дом расположен по Ул. Александрийская
23:47:0110001:6711
Дом 144 кв
Участок 3 сотки
Дом в предчиствой отделке: разводка сантехники, разводка электрики, теплый пол, стяжка, штукатурка.
Скважина, септик, свет подключен к дому.
В доме 4 спальни, 2 сан узла, просторная кухня-гостиная, выход на террасу, котельная с оборудованием.
Дом построен, документы готовы к сделке.
Любая форма расчёта, подходит семейная ипотека.
Звоните, показ в удобное для Вас время.
Дата обновления: 28 февраля 2026